Котлы газовые настенные Sime серии Metropolis
Настенный газовый котел SIME (СИМЕ) METROPOLIS (МЕТРОПОЛИС) предназначен для отопления и приготовления горячей воды. Модельный ряд котлов METROPOLIS включает 4 модели двухконтурных котлов: METROPOLIS 25 OF и 30 OF - котлы с открытой камерой сгорания мощностью 25 и 30 кВт. METROPOLIS 25 BF 30 BF - котлы с закрытой камерой сгорания мощностью 25 - 30 кВт.
Малыш с большими способностями
Благодаря своему небольшому размеру Metropolis - компактный настенный котел - является отличным решением проблемы тесных помещений. Использование этого котла особенно удобно в квартирных новых постройках, где место для установки котла ограничено или, как минимум, должно быть задействовано наилучшим образом. Элегантный дизайн, простота использования, широкая гамма моделей и высокие технические характеристики позволяют удовлетворить потребность в отоплении и в горячей воде, гарантируя наилучшее качество марки Sime. Metropolis соотвествует Директиве по газу CEE 90/396, электромагнитной совместимости CEE 89/336, низкому напряжению CEE 73/23 и К.П.Д. CEE 92/42.
Большой комфорт в небольшом пространстве
Особо сдержанные размеры Metropolis позволяют помещать котел в кухонные гарнитуры и свободно пользоваться им даже в тесных местах. Благодаря большому выбору моделей Metropolis может удовлетворить любые запросы.
Модель Metropolis 25 BF, производя около 13 литров горячей воды в минуту, моментально создает фонтан горячей воды: идеальное решение для домов с потребностью в одновременном пользовании горячей водой в нескольких точках и в экономии пространства.
Такой маленький и такой простой
Пульт управления Metropolis соединяет в себе дизайн и функциональность. Элегантность и утонченность линий позволяют гармонично вводить Metropolis в любой контекст. Простые команды делают управление котлом элементарным. Разноцветные сигнальные лампочки указывают на возможные неполадки. Уход за пультом управления упрощен: достаточно отвинтить 3 болта, не снимая панели, пульт можно вынуть и перевернуть, доходя, таким образом, до внутренних деталей.

Компоненты панели управления котлов Sime Metropolis
- Термогидрометр.
- Зона программирующих часов.
- Выбор режима (включить, лето, зима, прочистка дымохода).
- Потенциометр подачи горячей воды (30-60°C).
- Потенциометр отопления (40-80°C).
- Красный индикатор: ошибка в работе котла.
- Зеленая лампочка:
- горит постоянно: под напряжением,
- мигает: функция самодиагноза.
Особенности котлов Sime Metropolis
- Битермический медный теплообменник.
- 3-х скоростной насос.
- Диаметр коаксиального дымохода 80/125 мм, что позволяет устанавливать котлы на расстоянии 7 м от наружной стены.
- Контур системы отопления в котлах METROPOLIS защищен от низкого давления воды с помощью реле давления (0,6 бар), а не датчика расхода воды.
- Нагрев воды для системы ГВС включается по датчику расхода водопроводной воды регулируется отдельным датчиком температуры контура системы ГВС.
- Появилась новая опция у навесного котла METROPOLIS: возможность подключения бойлера системы ГВС, который может нагреваться от солнечных коллекторов. Горячая вода с бойлера поступает в котел (на контур ГВС), если солнечной энергии недостаточно, то котел догревает воду до заданной температуры. Управление нагревом воды от солнечных панелей осуществляется электронной платой котла.
Технические особенности котлов Sime Metropolis
| Технические особенности |
Sime Metropolis OF |
Sime Metropolis BF |
| Насос с отделением воздуха |
 |
 |
| Электрический клапан двойного закрытия, который в случае отсутствия пламени останавливает подачу газа |
 |
 |
| Дифференциальное реле давления отвечает за правильность работы системы аспирации и вывода |
|
 |
| Предохранительный клапан 3 Бар |
 |
 |
| Автоматический by-pass на контуре отопления |
 |
 |
| Функция автоматической очистки дымохода упрощает операции анализа выбросов |
 |
 |
| Предупреждение о нехватке воды |
 |
 |
| Прибор безопасности дыма с сигнальной лампочкой |
 |
|
Сосредоточенность эффективности
Metropolis - высоко эффективный котел. Оборудован электронной системой розжига, электросхемой модулирования контуров, режимом антизамерзания, включающимся при температуре 6°C с помощью зонда NTC.
Котлы Metropolis снабжены битермическими теплообменниками.
Технические данные котлов Sime (Симе) серии Metropolis
| Характеристики |
Sime Metropolis 25 OF |
Sime Metropolis 30 OF |
Sime Metropolis 25 BF |
Sime Metropolis 30 BF |
| Номинальная тепловая мощность, кВт (кКал/ч) |
23,7 (20.400) |
28,8 (24.800) |
23,8 (20.500) |
30,8 (26.500) |
| Минимальная тепловая мощность, кВт (кКал/ч) |
9,4 (8.100) |
11,9 (10.200) |
8,9 (7.650) |
11,8 (10.150) |
Номинальный расход тепла, кВт
|
25,8 |
31,6 |
25,8 |
33,0 |
КПД при номинальной мощности, %
|
92,4 |
91,2 |
93,5 |
93,5 |
КПД при 30% номинальной мощности, %
|
91,3 |
91,6 |
93,1 |
93,3 |
| Энергетический КПД, (CE 92/42) |
★ ★ |
★ ★ |
★ ★★ |
★ ★★ |
Объем воды, л
|
2,2 |
2,4 |
2,2 |
2,4 |
Макс. давление воды в системе, бар
|
3 |
3 |
3 |
3 |
Потребление электроэнергии, Вт
|
90 |
110 |
120 |
165 |
| Класс электрозащиты, IP |
X4D |
X4D |
X4D |
X4D |
| Расширительный бак, объем/давление, л/бар |
7/1 |
8/1 |
7/1 |
8/1 |
| Производительность ГВС при Δt 25°C, л/мин |
13,6 |
16,5 |
13,6 |
17,7 |
| Производительность ГВС при Δt 30°C, л/мин |
11,3 |
13,8 |
11,4 |
14,7 |
| Минимальная подача воды, л/мин |
2,2 |
2,2 |
2,2 |
2,2 |
Мин./макс. давление в контуре ГВС, бар
|
0,1/7 |
0,2/7 |
0,1/7 |
0,2/7 |
Температура в контуре отопления, %
|
30÷80 |
30÷80 |
30÷80 |
30÷80 |
Температура в контуре ГВС, %
|
30÷60 |
30÷60 |
30÷60 |
30÷60 |
Макс. прямолинейная длина горизонт. коакс. трубы ø 60/100, м
|
- |
- |
3,6 |
3,6 |
Макс. прямолинейная длина горизонт. коакс. трубы ø 80/125, м
|
- |
- |
6 |
7 |
Макс. горизонт. длина разделит. труб, м
|
- |
- |
18+18 |
21+21 |
Вес, кг
|
30 |
33 |
38 |
40 |
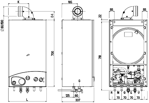
Размеры и гидравлические подключения котлов Sime Metropolis
Модель "25-30 OF"

Модели "25-30 ВF"

Размеры котлов Sime Metropolis
| Модель |
L, мм |
K, мм |
D, мм |
| Sime Metropolis 25 OF |
400 |
- |
130 |
| Sime Metropolis 30 OF |
450 |
- |
150 |
| Sime Metropolis 25 BF |
400 |
215 |
- |
| Sime Metropolis 30 BF |
450 |
240 |
- |
Гидравлические подключения котлов Sime Metropolis
| Подключения |
Соединение |
| M - подача отопления |
3/4" |
| R - обратка отопления |
3/4" |
| G - газовое подключение |
3/4" |
| E - вход холодной воды |
1/2" |
| U - выход горячей воды |
1/2" |
Инструкция по установке и эксплуатации котла SIME серии METROPOLIS (*.pdf 1,92 Mb)
Перечень и описание запчастей для котла SIME серии METROPOLIS (*.rar 1,45 Mb) |